28 . MULTIFOLD ASSEMBLY AND ADJUSTMENT INSTRUCTIONS
To site assemble "flat packed" multi-fold door system...
Multi-fold "flat packs" have already been fully assembled in the factory and therefore re-assembly is as easy as putting the correct screws back in the correct sequence.
The most difficult issue is final adjustment of the rolling gear to ensure smooth operation of the doors. Every multi-fold will have already been adjusted and locked off in the factory there is a chance that during transportation and re-assembly they may have been moved and require site adjustment, by the Installer/Builder.
In most cases re-assembly will be undertaken by the site Installer/Builder when the frame is being installed in its final location. However if the customer wishes to re-assemble independent of site installation the following instructions will be usefull.
Wherenever possible it is preferable to wait until the frame has been fitted off in its final location before attempting to make final door adjustments.





These processes apply to the re-assembly of all "flat packed" Woodworkers multi-fold door or window systems.
In the case where doors open folding both left and right the same principles apply.
Where there is one door that is hung on "board butt" hinges, opening in the opposite direction to the other doors in that frame, the independent door is simply screwed on the broad butt hinges using the existing screw holes.
To install multi-fold frame on site
Multi-fold frames are not self supporting, neither are they structual.
The most critical aspects of the opening in which the multi-fold frame is to be located are:
- square opening;
- clean, straight weight bearing lintal;
- clearance between the frame and lintal;
- clearance between outside of jamb and wall;
- clean, straight, flat base.
Fix the head of the multi-fold frame.

Fix the multi-fold frame following these steps.
Step1:
Step2:
Step3:
To site adjust multi-fold doors
BEFORE ADJUSTMENT ENSURE ALL TIMBER SURFACES HAVE BEEN SEALED CORRECTLLY, TAKING PARTICULAR CARE THAT ALL END GRAIN(STILES ON DOORS) HAS AT LEAST TWO COATS OF SEALER TO MINIMIZE TIMBER MOVEMENT DUE TO VARYING CLIMATIC CONDITIONS.
(ALL WOODWORKERS JOINERY MUST BE SEALED WITHIN 48 HOURS OF DELIVERY)
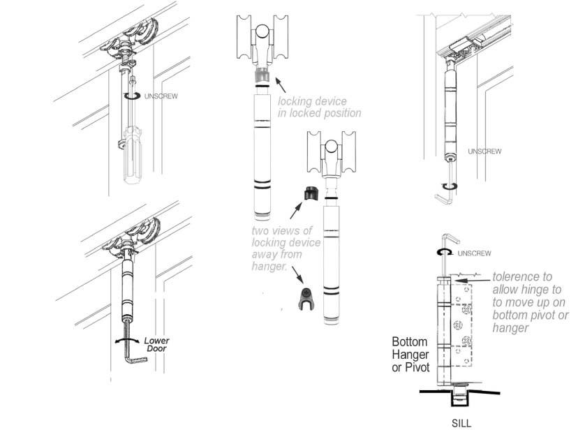
1. Doors need to be raised or lowered.
a. Remove all the "locking devices" located at the top of all the hangers and pivot (just under the rollers), by removing the phillips head screw (this is a short screw, be very carefull not to loose it).
b. Before raising the door firstly check the bottom pivot to ensure it has sufficient tolerance above the hinge leaf to move upwards. The tolerance can be increase by turning the main pivot shaft with an allen key anti-clockwise.
c. To raise the door use allen key to turn the bottom end of the main shaft of top hanger or pivot clockwise, to lower the door turn it anti-clockwise.
2. Closing too tight.
Decrease the gap between the pivot hanger and the jamb to overcome a tight "spring" when pulling shut and securing the flush bolts.
a. Loosen the two allen head screws at the top of the main shaft of the top pivot hanger ( this will allow it to slide slightly along the top track).
b. Loosen the right and left allen head screews at the base of the bottom pivot.
c. Place the allen key in the middle allen key screw and turn slightly right or left, the "cam" located under the allen screw head will move the door in or out (either closer to the jamb ot further away).
d. Manually adjust the top pivot hanger to suit the new position of the bottom pivot (usually a parallel gap between the edge head screws(top and bottom).
e. Lock off both sets of allen head screws (top and bottom).
3. Flapper door has large gap between door edge and jamb.
Follow procedure for 2 above, but increase the gap between the edge of the pivot door and jamb.
4. Gap between opposing doors to big or small.
Follow procedure for 2 or 3 above.
5. Flush bolts do not enter striker easily.
Adjust the door as for either 2 or 3 above.
For the homeowner - spare parts list




My Account
My Wishlist
My Enquiries